Appartement T3 en RDC proche Hippodrome à vendre Orleans

Le logement en quelques mots

Situé rue Vieille levée à Orléans, dans un quartier calme et résidentiel,
A 5 minutes des bords de Loire et de l'Hippodrome d'Orléans,
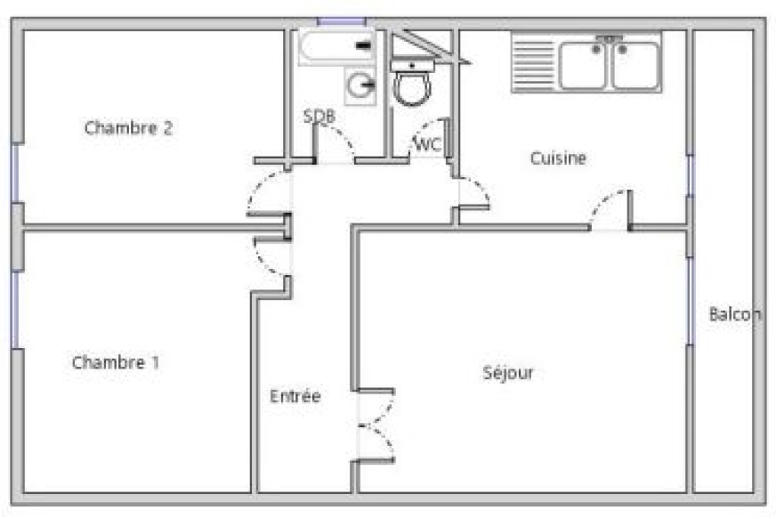
Venez découvrir cette appartement T3 de 64.4 m², au Rez de Chaussée (sans ascenseur) d'une résidence sécurisée,

L'appartement comprend, une entrée, un salon avec balcon, une cuisine indépendante, deux chambres, une salle de bain , et un WC séparé
Une place de parking accompagne le logement
Prix de vente : 116 300€

Classe Energie : E 245
Classe Climat : E 50
Montant estimé des dépenses annuelles d'énergie pour un usage standard : 1150-1590
Année de référence des prix de l'énergie utilisés pour établir cette estimation : 2021-22-23
« Les informations sur les risques auxquels ce bien est exposé sont disponibles sur le site Géorisques : www.georisques.gouv.fr »
Modalités de visite : sur RDV auprès de : M. Papin au 06.88.38.66.28 gregory.papin@residences-orleanais.fr
Modalités de remise des offres d'achat : par mail, ou par courrier postale, ou remise en main propre,
Date limite de remise des offres le 18/01/2026.
Appartement soumis au statut de la copropriété.
Copropriété de 96 Lots.
Montant moyen annuel de la quote-part du budget prévisionnel : en cours de création.€
Aucune procédure de copropriété en difficulté ou en état de carence (en cours de création


Descriptif et tarifs

Consommation énergétique

Performance énergétique️ Logement trés performant Logement extrêmement peu performant A B C D consommation (énergie primaire) émissions 245 1* kg CO₂/m²/an kWh/m².an E passoire énergétique F G www.outils.immo

Gaz à effet de serre

Performance climatique * Dont émissions de gaz à effet de serre A E 50 kg CO₂/m²/an Peu d'émissions de CO₂ Émissions de CO₂ très importantes www.outils.immo

Tarifs du bien

  • Prix : 116 300€

Surface et pièces

  • Surface habitable : 64m²
  • Nombre de pièces : 3
  • Nombre de chambres : 2
  • Nombre de salle de bain : 1
  • Étage du logement : 0

Logement en détail

  • Type de logement : T3
  • Disponibilité : bientot
  • Appartement meublé : Non
  • Cuisine équipée : Non
  • Jardin : Non
  • Balcon : Non
  • Interphone : Non
  • Type de chauffage : Individuel
  • Garage : Non
  • Terrasse : Non
  • Cave : Non
  • Accessibilité (PMR) : Non

Localisation du bien

Lat/lng